Купить автоматический угольный котел 0.3 МВт в Пензе

  • Эффективная работа на каменном и буром угле размерами кусков до 10 см
  • Емкий топливный бункер
  • До 3 – 7 суток работы на одной загрузке бункера
  • Шнек с функцией автореверса
  • Работает без дымососа
  • Умная и надежная автоматика промышленного исполнения
  • Котлы могут отправлять отчёты о своём состоянии и управляться дистанционно через GSM-модуль (опционно)
Цена с НДС:
990 000 рублей
Цена с НДС на автоматический угольный котел 0.3 МВт с доставкой в
от 990 000 рублей
Условия в
В наличии на складе
Доставка ТК по России и Казахстану
Безналичный расчет
Есть в наличии
Можно купить в лизинг
Угольный автоматический котел 0.3 МВт
Автоматический угольный котел 0.3 МВт
Котел 0.3 МВт на угле автоматический
Автоматический котел 0.3 МВт на угле
Котел угольный 0.3 МВт с автоматической подачей
Угольный котел 0.3 МВт с автоматической подачей
Угольный автоматический котел 0.3 МВт
Котел 0.3 МВт на угле автоматический
Котел угольный 0.3 МВт с автоматической подачей
Видеообзор
Вид топки Ретортная, Автоматическая
Максимальная тепловая мощность 0.3 МВт
Топливо Твердое, Уголь
Отапливаемая площадь от 2300 до 3300 м²
Технические
характеристики
Описание
товара
Комплект
поставки
Дополнительно
потребуется
Схема
подключения
Сертификаты
и гарантии
Подбор
котла

Технические характеристики автоматического угольного котла 0.3 МВт

Вид Водогрейный
Тип отопительного котла Твердотопливный
Бренд HEATEXPERT
Тип Котел КВа КБ
Вид топки Ретортная, Автоматическая
Максимальная тепловая мощность 0.3 МВт
Максимальная тепловая мощность 300 кВт
Максимальная тепловая мощность 0.26 Гкал
Диапазон регулирования мощности 30-100 %
Диапазон регулирования мощности 90-300 кВт
Топливо Твердое, Уголь
Низшая теплота сгорания проектного топлива 5230 кКал/кг
Влажность топлива 30 %
Фракционный состав топлива от 15 мм до 50 мм (семечко, мелкий орех), допускается применение кусков до 100 мм до 10% мм
КПД котла на УГЛЕ 80 %
Расход УГЛЯ среднечасовой за отопительный сезон 35 кг/ч
Расход УГЛЯ при максимальной нагрузке котла 62 кг/ч
Расход условного топлива 46 кг/ч
Срок автономной работы при минимальной нагрузке до 2 суток (48 часа)
Срок автономной работы в среднем за отопительный сезон 1,25 суток (30 часов)
Срок автономной работы при максимальной нагрузке котла 17 часов
Минимальная температура воды на входе в котел 55 °C
Максимальная температура воды на выходе из котла 115 °C
Давление воды, не более 0.15-0.3 (1.5-3) МПа (кгс/см²)
Номинальный расход теплоносителя 11 м³/ч
Расход теплоносителя через котел min-max 8-14 м³/ч
Гидравлическое сопротивление при номинальном расходе не более 0.07 (0.7) МПа (кгс/cм²)
Аэродинамическое сопротивление 35 (3,5) Па (мм. вод. ст.)
Разряжение в топочной камере 20-40 (2-4) Па (мм. вод. ст.)
Объем уходящих газов 1300 м³/ч
Температура уходящих газов, не более 250 °C
Тяга Естественная
Водяной объем котла 125 л
Объем топочной камеры 0.6 м³
Объем бункера 0.8 м³
Объем штатного бункера (насыпная плотность 1300 кг/м³) 1040 кг
Присоединительные размеры по водяному тракту 50 Ду
Присоединительные размеры газохода уходящих газов, ширина*высота / сечение Ду 300/0.07 мм/м²
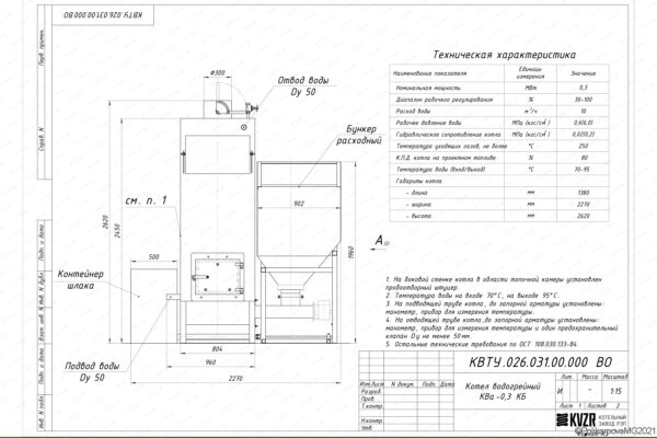
Габаритные размеры блока, длина*ширина*высота 960х960х2165 мм
Габаритные размеры установки, длина*ширина*высота 1380х2270х2620 мм
Масса 1200 кг
Конструкция котла водотрубная, вертикальная
Количество контуров Одноконтурный
Размещение Напольный
Тип камеры сгорания Закрытый
Управление Электронное
Принцип работы твердотопливного котла Классический
Энергонезависимый Нет
Тип питания Трехфазное
Встроенный циркуляционный насос Нет
Встроенный расширительный бак Нет
Марка HeatExpert
Отапливаемая площадь от 2300 до 3300 м²
Отапливаемый объем от 6900 до 10000 м³
Энергоэффективность Высокая
Чертеж автоматического котла на угле 0.3 МВт
Чертеж автоматического угольного котла 0.3 МВт
Автоматический котел на угле 0.3 МВт чертеж
Автоматический угольный котел 0.3 МВт чертеж
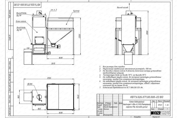
Чертеж автоматического котла на угле 0.3 МВт с бункером 2 м3
Чертеж автоматического угольного котла 0.3 МВт с бункером 2 м³
Чертеж автоматического котла на угле 0.3 МВт с бункером 3 м3
Чертеж автоматического угольного котла 0.3 МВт с бункером 3 м³

Котел автоматический 0.3 МВт в Пензе

Угольный автоматический котел 0.3 МВт работает с естественной тягой, без дымососа, устанавливается в котельной для отопления больших помещений, коттеджей, загородных домов, складских, ремонтных баз, СТО, теплиц и офисных зданий площадью 2300 – 3300 м2. Температура нагрева воды 115 °С, рабочее давление 0.1 – 0.3 МПа.

Российский автоматический твердотопливный котел 0.3 МВт способен длительное время работать без вашего участия. Автоматика позволяет настраивать и поддерживать комфортную температуру, дозируя подачу топлива, а GSM модуль полностью контролирует работу котла и оповещает вас о любых сбоях в работе.

Бункер котла на угле автоматического

Все обслуживание котлоагрегата сводится к добавлению угля в бункер один раз в 3 – 7 дней (в зависимости от погодных условий и требуемой температуры) и периодического очищения бункера шлака.

Стальные алтайские автоматические котлы отопления 0.3 МВт работают на каменном и буром угле размерами кусков от семечки до 100 мм. Использование как сортового, так и не сортового угля различных фракций, освобождают вас от предварительной подготовки топлива и сложностей с его поиском.

Емкий бункер

Водогрейный отопительный автоматический котел на угле 0.3 МВт изготавливается с бункером, вместительностью не менее 400 кг. Такого количества топлива хватает до 3 - 7 дней работы. Вам достаточно выставить нужную температуру в помещении и раз в неделю досыпать уголь в бункер. Конструкция бункера исключает зависание топлива. Устанавливается справа или слева от котлоагрегата.

Горелка ретортная автоматического угольного котла

Шнек с системой от заклинивания

Бункер оснащен шнеком с системой защиты от заклинивания. При заклинивании шнека из-за случайно попавшего угля более крупного размера, наш автоматический котел на твердом топливе 0.3 МВт включает обратный ход и затем снова подает топливо на реторту. Агрегат без функции реверсивного движения останавливает свою работу и без вашего вмешательства не возобновляет движение. Шнек производит подачу топлива прямо на ретортную горелку в камере сгорания.

Особенности топки

Ретортная горелка устанавливается в середине топочной камеры. Такая конструкция равномерно нагревает стенки автономного трубного котла, предотвращая перегрев и увеличивая путь к бункеру, снижая вероятность возгорания. Полная безопасность работы обеспечивается автономной системой пожаротушения, срабатывающей даже при сбоях с электроэнергией.

Теплообменник с максимальной теплоотдачей

Производственный котел 0,3 МВт с автоматической подачей угля – газоплотный, водотрубный. Вода поступает в трубы котельного блока, расположенные в шахматном порядке. Шахматное расположение позволяет максимально омывать поверхности нагрева и отдавать тепло теплоносителю. Расположение труб в шахматном порядке исключает забивание осаждения, снижает вероятность забивания трубных пучков конвективной части и обеспечивает компактность агрегата. Высокая скорость воды в трубах сдерживает процессы отложения накипи в поверхностях нагрева и исключает перегрев.

Автоматическое золоудаление
Золоудаление автоматическое

Чтобы очистить шнековый твердотопливный угольный котел 0.3 МВт с автоматической подачей топлива не требуется его останавливать и самостоятельно выгребать золу. Встроенное автоматическое золоудаление сбрасывает образующиеся золу и шлак в специальный бункер-накопитель, находящийся рядом с котлом. Достаточно периодически его очищать.

Умная автоматика

Промышленный твердотопливный котел автомат для угля 0.3 МВт прост в обслуживании и управлении. Автоматика снимает с вас массу обязанностей и облегчает обслуживание - доставляет топливо из бункера в топку, регулирует подачу воздуха, поддерживает заданную температуру, управляет насосами, отвечает за безопасность. Для этого на щите устанавливаются необходимые настройки, которые можно тонко регулировать для более экономичного расхода топлива.

Монтаж и комплектация

Отечественный автоматический угольный котел 0,3 МВт поставляется блоками максимальной заводской готовности, цена включает - котельный блок, топку с ретортой, бункер с шнеком, вентилятор поддува, контейнер шлака, вентили, предохранительные клапаны, термометры, манометры, трехходовые краны, паспорт и инструкцию по эксплуатации.

Агрегат собирается в котельной на специально подготовленную ровную поверхность и закрепляется анкерными болтами. Далее подсоединяется по воде, устанавливается запорная арматура на подводящем и отводящем трубопроводе, устанавливаются предохранительные клапаны, дренажи, воздушники и контрольно измерительные приборы. В воздушный короб по месту врезается вентилятор, монтируется газоход.

GSM модуль

GSM модуль - контролирует состояние котла, оповещает о любых сбоях в работе. Является дополнительной опцией, поставляется по запросу.

Купить автоматический угольный котел 0.3 МВт

Для того, что бы купить автоматический твердотопливный котел 0.3 МВт в Пензе вы можете оформить заявку в отделе сбыта по телефону 8-800-700-06-43, либо оформить заявку он-лайн. Инженеры-консультанты помогут выбрать подходящие модели и котельно-вспомогательное оборудование, рассчитают стоимость доставки до вашего региона и населенного пункта. Транспортирование котлоагрегатов может осуществляться транспортными компаниями, автомобильным транспортом, железнодорожным и речным видами транспорта.

Цена водогрейного автоматического угольного котла 0.3 МВт включает в себя запорную арматуру и КИП в пределах котла, вентилятор поддува и предохранительные клапаны. Ниже приведена подробная информация.

Для эффективной и надежной работы автоматического угольного котла 0.3 МВт вам потребуется дополнительное оборудование - автоматика, дымосос, золоуловитель, насос сетевой и подпиточный, газоходы и переходники для газового тракта, дымовая труба. Мы предлагаем рассмотреть типовые варианты комплектации. В случае если у вас на объекте имеется насосное и тягодутьевое оборудование, мы можем проверить совместимость автоматического угольного котла 0.3 МВт нашего производства и вашего оборудования. Можем изготовить нестандартные узлы для выполнения быстрого монтажа котла - газоходы и узлы обвязки. Типовую схему монтажа котла вы можете посмотреть во вкладке схемы подключения.

Автоматика котлов с ретортной горелкой
Автоматика угольного котла с ретортной горелкой
340000 руб. с НДС

Полностью автоматическое регулирование работы котла:

  • ручной розжиг котла;
  • автоматическое поддержание заданной температуры;
  • погодозависимое регулирование;
  • контроль уровня топлива в топливном бункере (при использовании пеллет);
  • автоматическое пожаротушение, в случае возгорания в шнеке;
  • возможно подключение удаленного контроля параметров работы котла посредством GSM, Ethernet, WiFi модуля (доп опция)
TD насос
Насос TD32-33G2 (3 кВт)
141300 руб. с НДС

Водогрейный стальной отопительный автоматический угольный котел 0.3 МВт, предназначен для получения горячей воды номинальной температурой на выходе из котла от 95 до 115 °С рабочим давлением до 0,3 (3,0) МПа (кгс/см), используемой в системах централизованного теплоснабжения на нужды отопления, горячего водоснабжения. Устанавливается в производственных, промышленных и отопительных котельных.

Монтаж и подключение автоматического угольного котла 0.3 МВт

План расстановки оборудования в котельной

Для правильного подключения автоматического угольного котла 0.3 МВт в котельной необходимо оставить проемы для обслуживания оборудования во время эксплуатации. Эти расстояния рекомендованы СНИП II-35-76. На данной схеме представлены их размеры. Кроме того мы составили примерный план, как можно произвести расположение подключение оборудования, а также указали перечень минимально необходимого вспомогательного оборудования для работы котла. К вспомогательному оборудованию при работе котла относятся - щит управления котлом, насос циркуляционный, насос подпиточной воды, бак запаса воды, расширительный мембранный бак, дымовая труба и дымосос, золоуловитель (по желанию).
В случае если подпиточная вода не соответствует по своим характеристикам требованиям к питательной воде, необходимо предусмотреть систему водоподготовки котловой воды.
Для котельных 1 категории, являющиеся единственным источником тепла системы теплоснабжения и обеспечивающие потребителей первой категории, не имеющих индивидуальных резервных источников тепла, необходимо предусмотреть полное резервирование оборудования - котлов, насосов, ТДМ. Пунктиром обозначено оборудование для резервирования.
Для котельных 2 категории, включающие в себя промышленные и производственные котельные резервирование нужно предусматривать по необходимости.

Тепловая схема подключения котла

Схема тепловая котла

Образец тепловой схемы подключения оборудования в котельной приведен на данной схеме. При эксплуатации очень важно грамотно осуществить подключение оборудования, установить все контрольно измерительные приборы, для контроля параметров работы котельной и запорную арматуру для оперативного переключения потока теплоносителя при плановой или аварийной остановке оборудования. Данную схему можно использовать как пример для разработки под свой объект или заказать у нас разработку индивидуальной схемы для вашей котельной.

Водогрейный автоматический угольный котел 0.3 МВт имеет гарантийный срок 24 месяца. Срок работы при соблюдении правил монтажа и эксплуатации оборудования 10 лет.

Водогрейные котлы сертификат
Сертификат на водогрейные котлы
Сертификат на водогрейные котлы на газе и жидком топливе
Сертификат на водогрейные котлы на газе и жидком топливе

Подберите мощность котла для вашего объекта

Тип здания
Регион
Населенный пункт
Наружный объем здания
3)
Отапливаемый подвал
Объем подвала
3)

Отзывы о продукции

Другая похожая продукция

КВр котел 0.3 МВт
Котел КВр 0.3
Максимальная тепловая мощность, МВт 0.3
Топливо Твердое, Уголь
Вид топки Ручная, Колосники
Отапливаемая площадь, м² от 2300 до 3300
367 000 ₽
Котел с ОУР 0.3
Котел 0.3 с ОУР
Максимальная тепловая мощность, МВт 0.3
Топливо Твердое, Уголь
Вид топки Ручная, ОУР
Отапливаемая площадь, м² от 2300 до 3300
360 000 ₽
Котел на опилках 0.3 МВт автоматический
Котел 0.3 МВт на опилках
Максимальная тепловая мощность, МВт 0.3
Топливо Опилки, Твердое
Вид топки Вихревая, Автоматическая
Отапливаемая площадь, м² от 2300 до 3300
1 398 000 ₽
Котел на отходах древесных
Котел на древесных отходах 0.3 МВт
Максимальная тепловая мощность, МВт 0.3
Топливо Твердое, Дрова, Древесные отходы естественной влажности
Вид топки Ручная, подовая
Отапливаемая площадь, м² от 2300 до 3300
512 000 ₽
Угольный автоматический котел 0.2 МВт
Автоматический угольный котел 0.2 МВт
Максимальная тепловая мощность, МВт 0.2
Топливо Твердое, Уголь
Вид топки Ретортная, Автоматическая
Отапливаемая площадь, м² от 1200 до 2200
870 000 ₽